화곡동 156-6
도원솔비치 나동 503호 반전세는 거래되었습니다
보증금1억4천ㅡ월세 20만
24년7월16일 새로운세입자 입주예정
매매중개 진행부탁드립니다
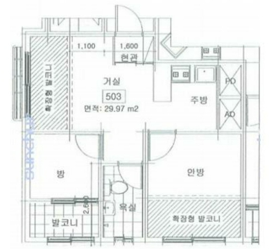
투룸빌라 / 방2개 화장실1개
2동 단지형 빌라
사용승인 2015년
6층 중 5층
엘리베이터 있음
가스레인지 옵션
화장실 2023년 리모델링
관리비 3.5만원
까치산역 도보 8분
주차가능
현재는공실 7월13일 새 세입자 짐들어와요
재개발 동의서 걷는 중
신정초 가까움
건물외관

현관에서 바라본 모습

현관
중문, 거울신발장

거실
LED등, 대리석 아트월




주방
가스레인지 옵션
아일랜드식탁



안방


작은방
베란다 있음



화장실
2023년 리모델링

평면도
발코니 확장되어있음

1층
